Продажа 2 комн., Комфорт-класс, 60,8/21/17,6, 21/25, Немировича-Данченко ул., 150, Кировский, 14 000 000 р.
Немировича-Данченко ул., 150, Кировский, Новосибирск
От остановки 5 мин.
От метро 15 мин
Транспортом до метро:5 мин.
2 комн.
21/25
| Тип квартиры: | Комфорт-класс |
|---|---|
| Планировка: | Комнаты изолированные |
| Материал строения: | Монолитный каркас |
| Площадь, кв.м.: | |
|---|---|
| Общая: | 60.8 |
| Жилая: | 21 |
| Кухня: | 17.6 |
| Санузел, сантехника, арматура: | |
|---|---|
| Санузел: | Раздельный |
| Состояние объекта: | |
| Состояние: | Евроремонт |
| Мебель: | Кровать, Диван, Кухонный гарнитур |
|---|---|
| Бытовая техника: | Холодильник |
| Парковка: | Подземная, встроенная, пристроенная в здании, Охраняемая открытая стоянка во дворе, Возможность ставить автомобиль возле дома, Платная парковка в микрорайоне |
| Цена: | 14 000 000 р. |
|---|---|
| Цена за кв.м: | 230 260 р. |
Агент: Елена Александровна Агентство: Прометей Телефон: 89612187344 Эл. почта: 252@anprometey.ru |
Обновлено: 6 апреля 2026 Просмотров: 28 |
Комментарий:
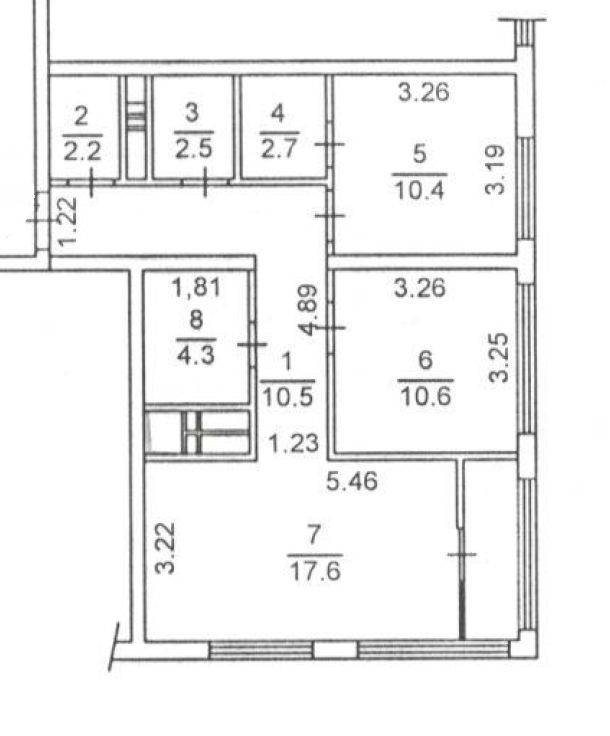
В продаже шикарная двухкомнатная квартира 64,1 кв.м в доме, расположенном в современном комфортном жилом комплексе "ПАНОРАМА". Прекрасная планировка очень удобна в эксплуатации: - Две изолированные комнаты: спальня 10,4 м2 (со входом в отдельную гардеробную 2,7 м2) и детская 10,6 м2, - Большущая кухня-гостиная 21 м2, - 2 санузла (2,5 и 4,3 м2) и - Гардеробная в прихожей 2,2 м2. Квартира очень тёплая даже в самые лютые морозы. Замечательный и удивительный вид на город, реку и красивые закаты. Стильный современный ремонт в хорошем состоянии. В спальнях на полу ламинат, в остальных помещениях - керамогранит. Натяжные потолки во всей квартире с точечными светильниками. В гостиной установлен кондиционер, который поможет в жаркие летние дни отдохнуть в прохладе. В ванной и туалете тёплый пол, кафель до потолка, унитаз с инсталляцией, водонагреватель, удобная глубокая ванна, оригинальные раковины с тумбами и зеркалами. В качестве приятного бонуса для будущих владельцев этой прекрасной квартиры остаётся: Кухонный гарнитур со встроенной варочной поверхностью, духовым шкафом, посудомоечной машиной и вытяжкой, диван, кондиционер, двуспальная кровать с тумбами, туалетный столик, система хранения в гардеробной и шкаф. В подъезде четыре скоростных и бесшумных лифта фирмы КОNЕ. В доме предусмотрена горизонтальная разводка отопления, оснащенная счетчиками тепла, что позволяет сократить затраты. Все показания передаются в автоматическом режиме. На первом этаже есть общедомовая колясочная. Отличная придомовая территория! Безопасные детские площадки с прорезиненным покрытием, Площадки для силовых тренировок и стритбола, Многоуровневая подсветка домов и дворовых пространств. Гостевые парковочные места. По периметру дома установлена система видеонаблюдения. Круглосуточная охрана с закрытым периметром. Рядом остановка общественного транспорта, станция метро "СТУДЕНЧЕСКАЯ" и "СПОРТИВНАЯ". В пешей доступности различные магазины, аптеки, салоны красоты, несколько фитнес-клубов, ТЦ "Горский", НГТУ и СибУПК, Университетская гимназия, лицеи и школы. Муниципальные сады в близлежащих кварталах на Блюхера, Новогодней и проспекте Карла Маркса. Детская поликлиника и Областная клиническая больница. Также квартал граничит с горнолыжным склоном, где вы можете кататься на лыжах или сноуборде буквально перешагнув за границу квартала. В шаговой доступности все крупные мероприятия, которые проводит новая СИБИРЬ-Арена, рядом с которой построен парк для занятий спортом и отдыха. Также рядом спортивный, батутный центр колледжа Олимпийского резерва и продовольственный рынок площадью 2500 м2. Всё для Вас! Звоните, чтобы узнать подробности и записаться на просмотр. Мы гарантируем безопасную сделку и юридическую поддержку нашим Клиентам. Поможем одобрить ипотеку со сниженной ставкой. А если вы из другого региона, проведем онлайн-показ и безопасную сделку в банке! При покупке данного объекта предусмотрена комиссия агентства.