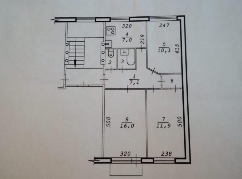
Продажа 3 комн., Хрущевка, 57/38/7, 5/5, Доватора ул., 25/1, Волочаевский, 5 100 000 р.
Доватора ул., 25/1, Волочаевский, Новосибирск
От метро 20 мин
Транспортом до метро:10 мин.
3 комн.
5/5
| Тип квартиры: | Хрущевка |
|---|---|
| Планировка: | Комнаты изолированные |
| Материал строения: | Панельное |
| Высота потолков: | 2.5 м |
|---|---|
| Площадь, кв.м.: | |
| Общая: | 57 |
| Жилая: | 38 |
| Кухня: | 7 |
| Коммуникации: | Домофон |
|---|---|
| Санузел, сантехника, арматура: | |
| Санузел: | Раздельный |
| Балкон, лоджия: | |
| Количество балконов: | 1 |
| Состояние объекта: | |
| Состояние: | Не требует ремонта |
| Парковка: | Охраняемая открытая стоянка во дворе |
|---|
| Цена: | 5 100 000 р. |
|---|---|
| Цена за кв.м: | 89 474 р. |
Агент: Марина Александровна Агентство: ЕВРОДОМ Телефон: 8-913-893-24-97, 8(383) 277-43-42 Эл. почта: ma1979@mail.ru |
Обновлено: 16 декабря 2025 Просмотров: 32 |
Комментарий:
Предлагается к продаже уютная теплая квартира. Изолированные комнаты, комфортная планировка. Ухоженная придомовая территория, современные детские площадки, расположенные с двух сторон дома, учитывающие интересы и возраст детей. При въезде во двор установлен шлагбаум. Развитая инфраструктура, в шаговой доступности школа, детские сады, поликлиника, магазины, торговые центры. Остановка общественого транспорта в двух минутах ходьбы. До станции метро "Золотая Нива" 5 минут на автомобиле. В перспективе продление Дзержинской линии от метро " Золотая нива " до станции " Молодежная" с метродепо "Волочаевское". Приглашаем на просмотр!