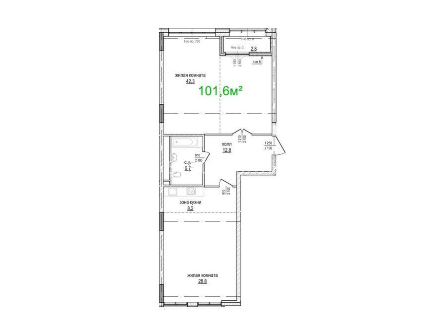
Продажа 3 комн., 101,7/42,3/28,8, 6/14, Красный пр-кт, 104, Заельцовский, 19 000 000 р.
Красный пр-кт, 104, Заельцовский, Новосибирск
3 комн.
6/14
Материал строения: | Кирпичное |
---|
Площадь, кв.м.: | |
---|---|
Общая: | 101.7 |
Жилая: | 42.3 |
Кухня: | 28.8 |
Санузел, сантехника, арматура: | |
---|---|
Санузел: | Совмещенный |
Конструкции строения: | |
Материал наружных стен: | Кирпич |
Балкон, лоджия: | |
Количество лоджий: | 1 |
Цена: | 19 000 000 р. |
---|---|
Цена за кв.м: | 186 824 р. |
Агент: Юлия Петровна Агентство: Солнцеград Телефон: +79237752380 Эл. почта: 200@anprometey.ru |
Обновлено: 30 сентября 2025 Просмотров: 2 |
Комментарий:
3-комнатная квартира-студия: простор и комфорт в каждой детали Представляем вашему вниманию уникальную 3-комнатную квартиру-студию площадью 101,7 кв.м. с террасами, которая станет идеальным местом для вашей семьи. Эти квартиры премиум-класса отличаются простором и наполнены светом благодаря окнам увеличенного размера, которые по замыслу архитектора Артура Лотарева являются элементом дизайна дома. Каждая квартира уникальна, и каждая деталь продумана до мелочей. Система вентиляции с фильтрацией воздуха обеспечивает чистоту и свежесть в вашем доме. Бесшумно работающие приточные клапаны позволяют получать достаточное количество свежего воздуха, не пропуская внешний шум. Это значит, что вам не нужно открывать окна для проветривания. Квартиры в Берлине свободной планировки, что позволяет вам создать интерьер по своему вкусу. Санузлы выделены кирпичной стеной, а поверхности стен, колонн и потолков представляют собой обеспыленную поверхность бетона. Внутренние поверхности кирпичных стен без штукатурки, с расшивкой швов и обеспыливанием, создают стильный и современный вид. Полы выполнены по технологии полусухой стяжки с полимерным фиброволокном, по слою из вибро-шумоизоляционного материала. В санузлах выполнена дополнительная гидроизоляция, что обеспечивает долговечность и надежность вашего жилья. Жилой комплекс оборудован подземным паркингом, что обеспечивает удобство и безопасность для жителей. Закрытая территория ЖК создает атмосферу уюта и защищенности. В квартире установлены немецкие оконные системы Schuco с американскими стеклами Guardian, которые обеспечивают идеальную шумоизоляцию и защиту от ультрафиолета, жары и холода. Высота потолков составляет 3 метра, что добавляет ощущение простора и свободы. Возможны все способы оплаты, рассмотрим обмен на квартиру меньшей площади с вашей доплатой. При покупке, покупатель оплачивает комиссию.