Продажа 1 комн., Типовая, 40,4/23,1/8,9, 2/9, Зорге ул., 84, Затулинский, 4 200 000 р.
Зорге ул., 84, Затулинский, Новосибирск
От остановки 5 мин.
Транспортом до метро:25 мин.
1 комн.
2/9
Тип квартиры: | Типовая |
---|---|
Планировка: | Комнаты изолированные |
Материал строения: | Панельное |
Высота потолков: | 2.5 м |
---|---|
Площадь, кв.м.: | |
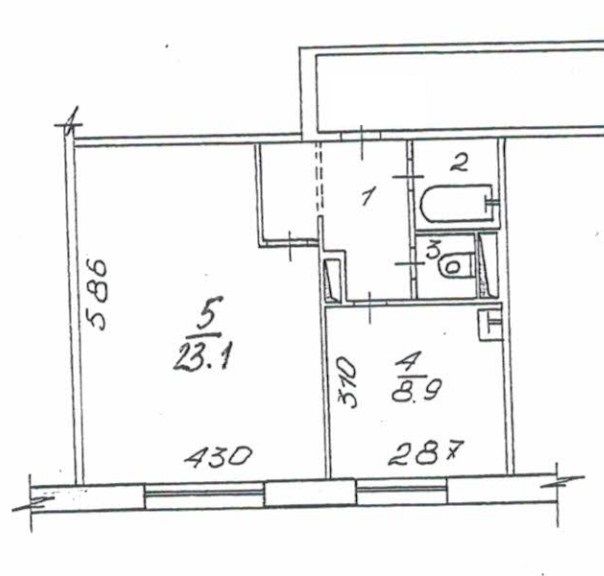
Общая: | 40.4 |
Жилая: | 23.1 |
Кухня: | 8.9 |
Санузел, сантехника, арматура: | |
---|---|
Санузел: | Раздельный |
Цена: | 4 200 000 р. |
---|---|
Цена за кв.м: | 103 960 р. |
Агент: Елена Агентство: Солнцеград Телефон: 89612187344 Эл. почта: 252@anprometey.ru |
Обновлено: 7 октября 2025 Просмотров: 3 |
Комментарий:
Не отказывайтесь от этого предложения! В продаже уютная 2-комнатная квартира (по документам 1-комнатная) на 2 этаже 9-этажного дома в Кировском районе Затулинского жилмассива города Новосибирска. Окна выходят во внутреннюю часть двора, поэтому в квартире тихо и спокойно. Для удобства проживания в жилой комнате 23,1 кв.м установлена перегородка, которая делит её на 2 изолированные комнаты. У вашего ребёнка будет своя комната! В квартире в этом году уже выполнили косметический ремонт: поменяли обои, смонтировали натяжные потолки, установили новые межкомнатные двери. Новый кухонный гарнитур со встроенной варочной поверхностью, а также новый кондиционер остаётся для ВАС! Санузел раздельный, для ремонта уже приобретены строительные материалы. Места общего пользования в доме в хорошем состоянии. Есть пассажирский лифт и мусоропровод, что делает проживание особенно комфортным. Для Вашего авто всегда найдётся свободное парковочное место возле дома. Расположение дома очень удобно, всё рядом: несколько школ, детские сады, поликлиника, почтовое отделение, магазины и супермаркеты, кинотеатр "Рассвет", Ледовая арена, плавательный бассейн, Дом творчества «Кировский», православный храм, сквер, парк культуры и отдыха, остановки общественного транспорта. Один собственник более 5 лет. Без обременений. Приходите на просмотр, Вам понравится! Если Вы ищете комфорт, тишину и спокойствие, желаете жить в доме с развитой инфраструктурой - ЭТО ВАШ вариант! При покупке ЭТОЙ квартиры выдается сертификат на скидку в магазин НОFF на сумму 50 000 рублей, что станет для Вас приятным бонусом. Агентство является действующим членом СРО Ассоциация "НОАН". Деятельность Агентства застрахована на 100 000 000 рублей в САО "РЕСО ГАРАНТИЯ". При покупке данного объекта предусмотрена комиссия агентства. Помощь в получении положительного решения по ипотеке, даже в сложных случаях.