Продажа Коттедж 4 комн., 91.8 кв.м, 6 200 000 р.
Криводановка
4 комн.
| Площадь, кв.м.: | |
|---|---|
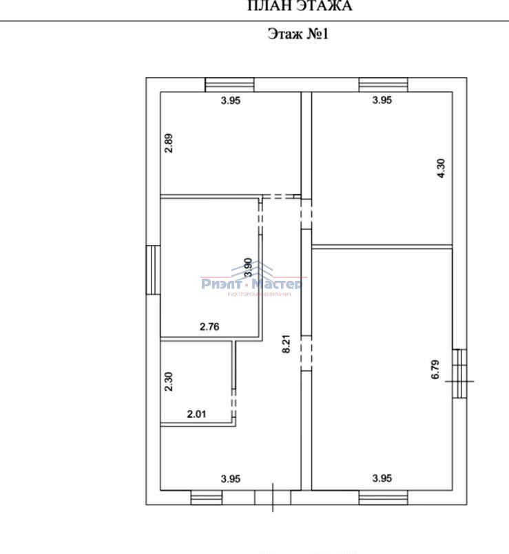
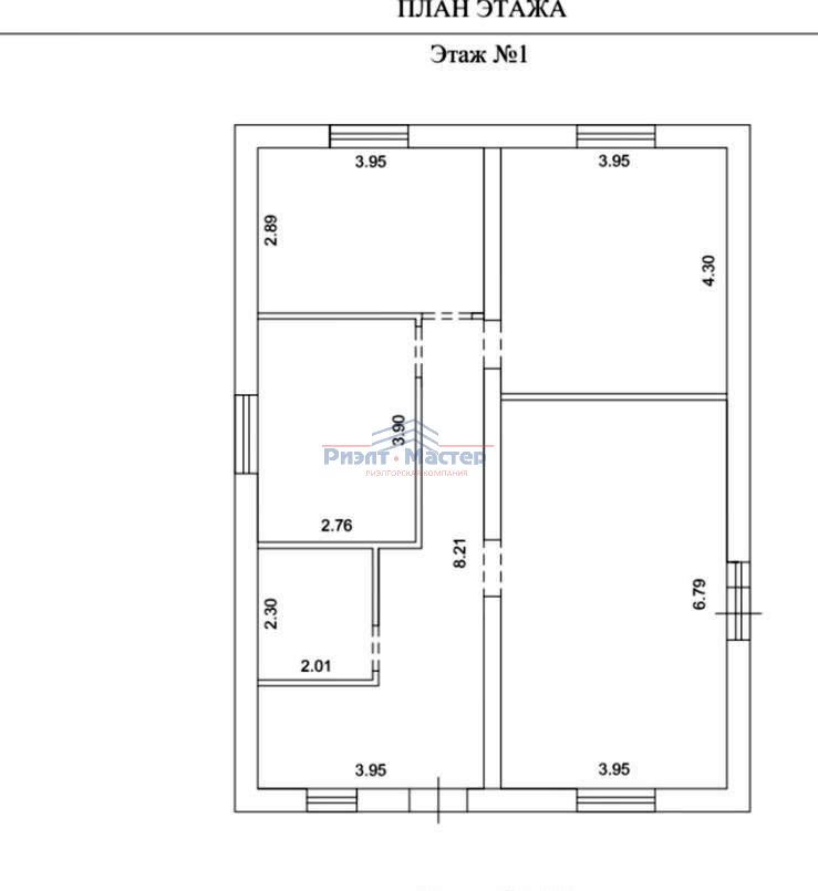
| Общая: | 91.8 |
| Жилая: | 39.18 |
| Кухня: | 23.82 |
| Земельный участок: | |
| Площадь: | 5 сот. |
| Количество санузлов в доме: | 1 |
|---|---|
| Водоснабжение: | Скважина |
| Канализация: | Выгребная яма |
| Конструкции строения: | |
| Материал наружных стен: | Газобетон (сибит) |
| Цена: | 6 200 000 р. |
|---|
Агент: Лариса Дмитриевна Агентство: Риэлт-Мастер Телефон: +79831251876 Эл. почта: larisa.lara.volkova@mail..ru |
Обновлено: 3 января 2026 Просмотров: 40 |
Комментарий:
Новый уютный коттедж 91,8м2 в селе Криводановка СНТ "Заря" ждёт свою семью! Это уникальный готовый дом с чистовой отделкой с комфортной планировкой по цене 1 комнатной квартиры в городе Новосибирске! Планировка дома включает в себя: -Просторную кухню-гостиную - 3 просторные спальни - санузел - бойлерную и котельную прекрасное загородное место, где Вы сможете наслаждаться чистейшим природным воздухом и домашним комфортом, рядом расположено озеро. Участок вокруг дома по разумной площади для сада и зоны отдыха Земельный участок -5 соток, входит в стоимость.! Все коммуникации подведены: газ по границе участка, электричество-эл.котел, вода- скважина с насосом, отопление-теплые полы + радиаторы. Посёлок расположен на расстоянии 8 км от Новосибирска. Есть возможность получения сельской ипотеки под 3%! Подходит семейную ипотеку 6%! Есть возможность купить дом без первоначального взноса! Комфортный платеж от 30-37тыс.руб. Возможность использовать для покупки сертификаты, материнский капитал! Хорошая транспортная доступность, близость к школе, детскому саду и магазинам. Детей возит школьный автобус! -остановки общественного транспорта, -отсыпанные и освещённые дороги Небольшой торг возможен. Успейте приобрести свою недвижимость по выгодным ценам уже сейчас!