Продажа 2 комн., Хрущевка, 45,7/32,6/5,8, 5/5, Новогодняя ул., 30, Кировский, 5 500 000 р.
Новогодняя ул., 30, Кировский, Новосибирск, рядом с НГТУ
От остановки 5 мин.
От метро 7 мин
Транспортом до метро:2 мин.
2 комн.
5/5
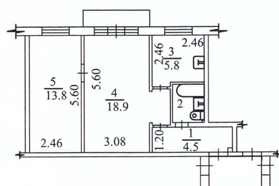
Тип квартиры: | Хрущевка |
---|---|
Планировка: | Комнаты смежные |
Материал строения: | Панельное |
Площадь, кв.м.: | |
---|---|
Общая: | 45.7 |
Жилая: | 32.6 |
Кухня: | 5.8 |
Санузел, сантехника, арматура: | |
---|---|
Санузел: | Совмещенный |
Балкон, лоджия: | |
Количество балконов: | 1 |
Мебель: | Кровать, Диван, Кресло, Кухонный гарнитур |
---|---|
Парковка: | Возможность ставить автомобиль возле дома |
Цена: | 5 500 000 р. |
---|---|
Цена за кв.м: | 120 350 р. |
Агент: Елена Агентство: Солнцеград Телефон: 89612187344 Эл. почта: 252@anprometey.ru |
Обновлено: 7 октября 2025 Просмотров: 3 |
Комментарий:
В продаже приятная 2х-комнатная квартира в 2х минутах от НГТУ! Квартира в хорошем состоянии, полностью готова для проживания. Пластиковые окна, ламинат, натяжные потолки, кафель в санузле. Новым владельцам остается в квартире практически всё: Кухня: кух. гарнитур, эл.печь, вытяжка, пос/моеч. машина, кух. стол с 2 табуретами и диванчиком, жалюзи, ковёр; Зал: диван, 1-сп кровать, шкаф, 2 журн. столика, комод, комп. стол, комп кресло, кондиционер, 2 ковра, шторы, тюль, гардины; Спальня: 2-сп кровать, шкаф-купе, 2 шкафа бельевых, 4 мягк стула, тумбочка, комп кресло, туалет столик с зеркалом, турник, гардины, тюль; Прихожая: зеркало, шкаф, холодильник, мягкий пуф, антресоли, ковёр; Санузел: зеркало, стир машина. Рядом остановка общественного транспорта, станция метро "СТУДЕНЧЕСКАЯ". В пешей доступности различные магазины, аптеки, салоны красоты, несколько фитнес-клубов, ТЦ "Горский", НГТУ и СибУПК, Университетская гимназия, лицеи и школы. Муниципальные сады в близлежащих кварталах на Блюхера, Новогодней и проспекте Карла Маркса. Детская поликлиника и Областная клиническая больница. Также в 15 минутах ходьбы находится горнолыжный склон, где вы сможете покататься на лыжах или сноуборде. В шаговой доступности все крупные мероприятия, которые проводит новая СИБИРЬ-Арена, рядом с которой построен парк для занятий спортом и отдыха. Также рядом спортивный, батутный центр колледжа Олимпийского резерва. Всё для Вас! Приходите на просмотр и покупайте! Один взрослый собственник. Без обременений. Предусмотрен торг! Помогу получить ипотечное решение на выгодных для Вас условиях! Индивидуальный подход к каждому клиенту, профессиональное юридическое сопровождение. Дополнительно оплачивается комиссия с покупателя.