Продажа 2 комн., Бизнес-класс, 64,1/17,6/21, 21/25, Немировича-Данченко ул., 150, Кировский, 13 000 000 р.
Немировича-Данченко ул., 150, Кировский, Новосибирск, рядом метро СПОРТИВНАЯ
От остановки 5 мин.
От метро 10 мин
Транспортом до метро:5 мин.
2 комн.
21/25
Первые этажи нежилые
Тип квартиры: | Бизнес-класс |
---|---|
Планировка: | Комнаты изолированные |
Материал строения: | Монолитный каркас |
Высота потолков: | 2.7 м |
---|---|
Площадь, кв.м.: | |
Общая: | 64.1 |
Жилая: | 17.6 |
Кухня: | 21 |
Санузел, сантехника, арматура: | |
---|---|
Санузел: | Нет информации |
Балкон, лоджия: | |
Количество лоджий: | 1 |
Цена: | 13 000 000 р. |
---|---|
Цена за кв.м: | 202 810 р. |
Агент: Елена Агентство: Солнцеград Телефон: 89612187344 Эл. почта: 252@anprometey.ru |
Обновлено: 7 октября 2025 Просмотров: 2 |
Комментарий:
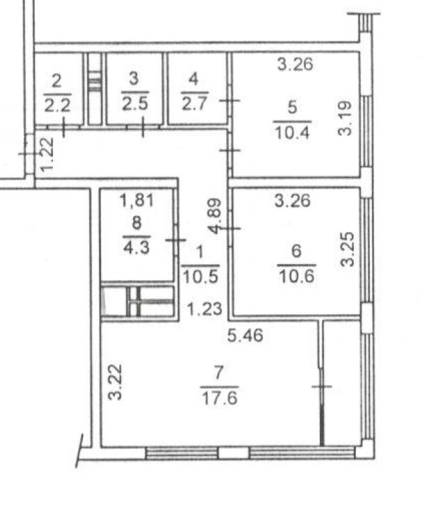
В продаже шикарная двухкомнатная квартира в доме, расположенном в современном комфортном жилом комплексе "ПАНОРАМА". Прекрасная планировка очень удобна в эксплуатации: - Две изолированные комнаты: спальня 10,4 м2 (со входом в отдельную гардеробную 2,7 м2) и детская 10,6 м2, - Большущая кухня-гостиная 21 м2, - 2 санузла (2,5 и 4,3 м2) и - Гардеробная в прихожей 2,2 м2. Квартира очень тёплая даже в самые лютые морозы. Замечательный и удивительный вид на город, реку и красивые закаты. Стильный современный ремонт в хорошем состоянии. В спальнях на полу ламинат, в остальных помещениях - керамогранит. Натяжные потолки во всей квартире с точечными светильниками. В гостиной установлен кондиционер, который поможет в жаркие летние дни отдохнуть в прохладе. В ванной и туалете тёплый пол, кафель до потолка, унитаз с инсталляцией, водонагреватель, удобная глубокая ванна, оригинальные раковины с тумбами и зеркалами. В качестве приятного бонуса для будущих владельцев этой прекрасной квартиры остаётся: Кухонный гарнитур со встроенной варочной поверхностью, духовым шкафом, посудомоечной машиной и вытяжкой, диван, кондиционер, двуспальная кровать с тумбами, туалетный столик, система хранения в гардеробной и шкаф. В подъезде четыре скоростных и бесшумных лифта фирмы КОNЕ. В доме предусмотрена горизонтальная разводка отопления, оснащенная счетчиками тепла, что позволяет сократить затраты. Все показания передаются в автоматическом режиме. На первом этаже есть общедомовая колясочная. Отличная придомовая территория! Безопасные детские площадки с прорезиненным покрытием, Площадки для силовых тренировок и стритбола, Многоуровневая подсветка домов и дворовых пространств. Гостевые парковочные места. По периметру дома установлена система видеонаблюдения. Круглосуточная охрана с закрытым периметром. Рядом остановка общественного транспорта, станция метро "СТУДЕНЧЕСКАЯ" и "СПОРТИВНАЯ", В пешей доступности различные магазины, аптеки, салоны красоты, несколько фитнес-клубов, ТЦ "Горский", НГТУ и СибУПК, Университетская гимназия, лицеи и школы. Муниципальные сады в близлежащих кварталах на Блюхера, Новогодней и проспекте Карла Маркса. Детская поликлиника и Областная клиническая больница. Также квартал граничит с горнолыжным склоном, где вы можете кататься на лыжах или сноуборде буквально перешагнув за границу квартала. В шаговой доступности все крупные мероприятия, которые проводит новая СИБИРЬ-Арена, рядом с которой построен парк для занятий спортом и отдыха. Также рядом спортивный, батутный центр колледжа Олимпийского резерва и продовольственный рынок площадью 2500 м2. Всё для Вас! Приходите на просмотр и покупайте! Предусмотрен торг! Помогу получить ипотечное решение на выгодных для Вас условиях! Индивидуальный подход к каждому клиенту, профессиональное юридическое сопровождение. Дополнительно оплачивается комиссия с покупателя.